Sale a licitación el proyecto para dotar al San Miguel de un área de ocio familiar y un 'workout'
Sale a licitación el proyecto para dotar al San Miguel de un área de ocio familiar y un 'workout'

Las obras van a suponer una inversión de 155.671,68 euros
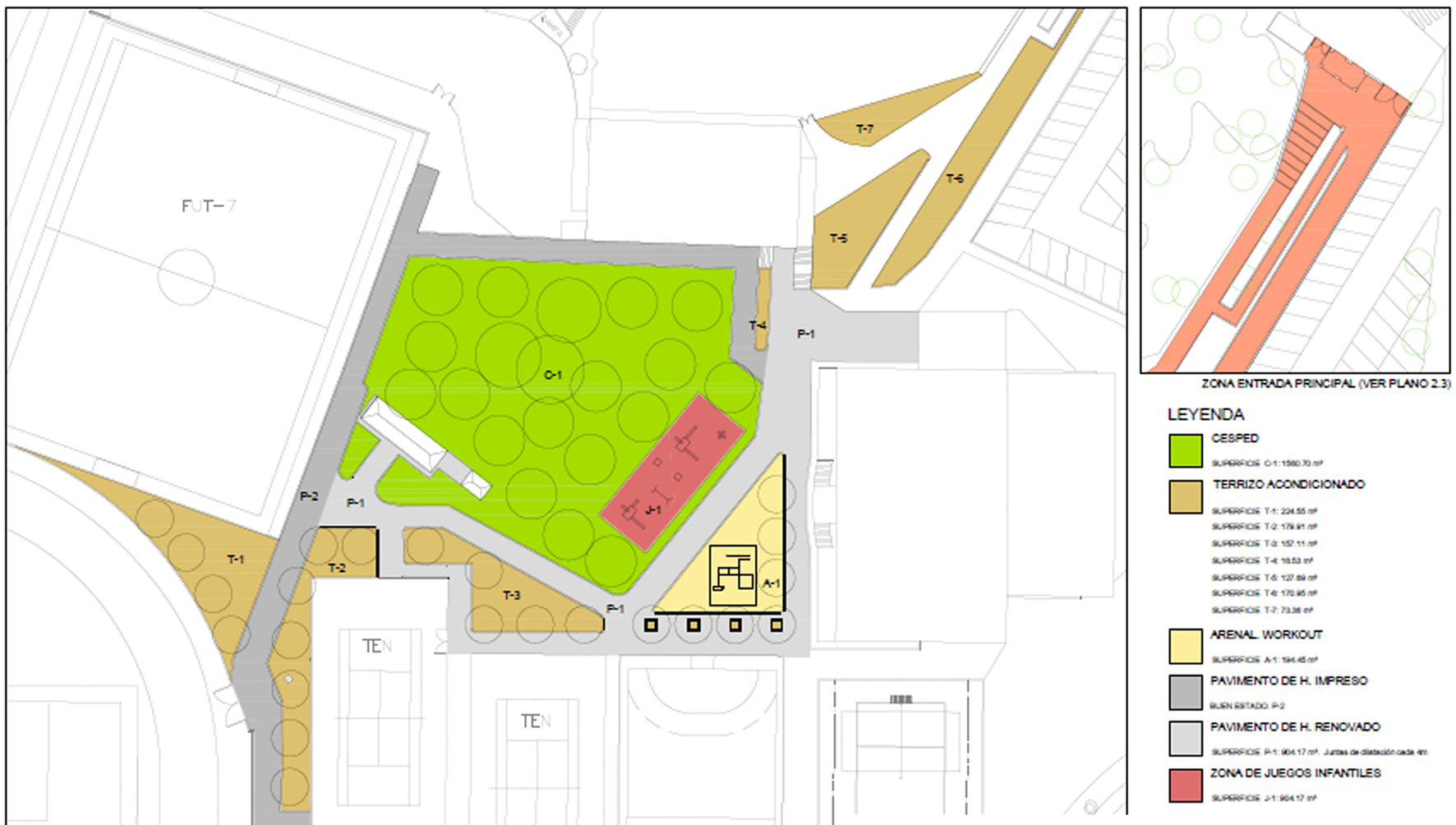
La Junta de Gobierno del Ayuntamiento de Azuqueca de Henares ha aprobado el inicio de la licitación de las obras de mejora previstas en el complejo deportivo San Miguel por un importe de 155.671,68 euros. Las empresas tienen de plazo hasta el día 5 de diciembre para presentar sus ofertas al Ayuntamiento.En concreto, se va a actuar en dos zonas: en el merendero y en la entrada principal. En la primera, se acondicionarán zonas verdes con césped, diversas especies arbóreas y riego automático; se sustituirá el pavimento en mal estado y se harán trabajos de ampliación y mejora del almacén que alberga los depósitos de agua para el riego; también se habilitará una zona donde se instalarán unos juegos de exterior de workout (barra corta, anillas y larga; escalera vertical y horizontal, banco de abdominales y barras de flexiones). En la zona de la entrada principal, se va a sustituir el pavimento deteriorado, incluido el de la escalera que lleva al merendero. El plazo de ejecución previsto es de 13 semanas.Esta actuación forma parte del Plan municipal de Mejora de Instalaciones Deportivas. "Estamos trabajando para facilitar la práctica deportiva en la ciudad en las mejores condiciones posibles y apostamos por incrementar espacios para la práctica de deporte al aire libre, con la puesta a disposición de las zonas de recreo del complejo para el disfrute de las familias", afirma Sergio de Luz, concejal de Deportes.