Adjudicadas las obras para incorporar un área de ocio familiar y un 'workout' al complejo San Miguel
Adjudicadas las obras para incorporar un área de ocio familiar y un 'workout' al complejo San Miguel

Por un importe de 124.050,93 euros
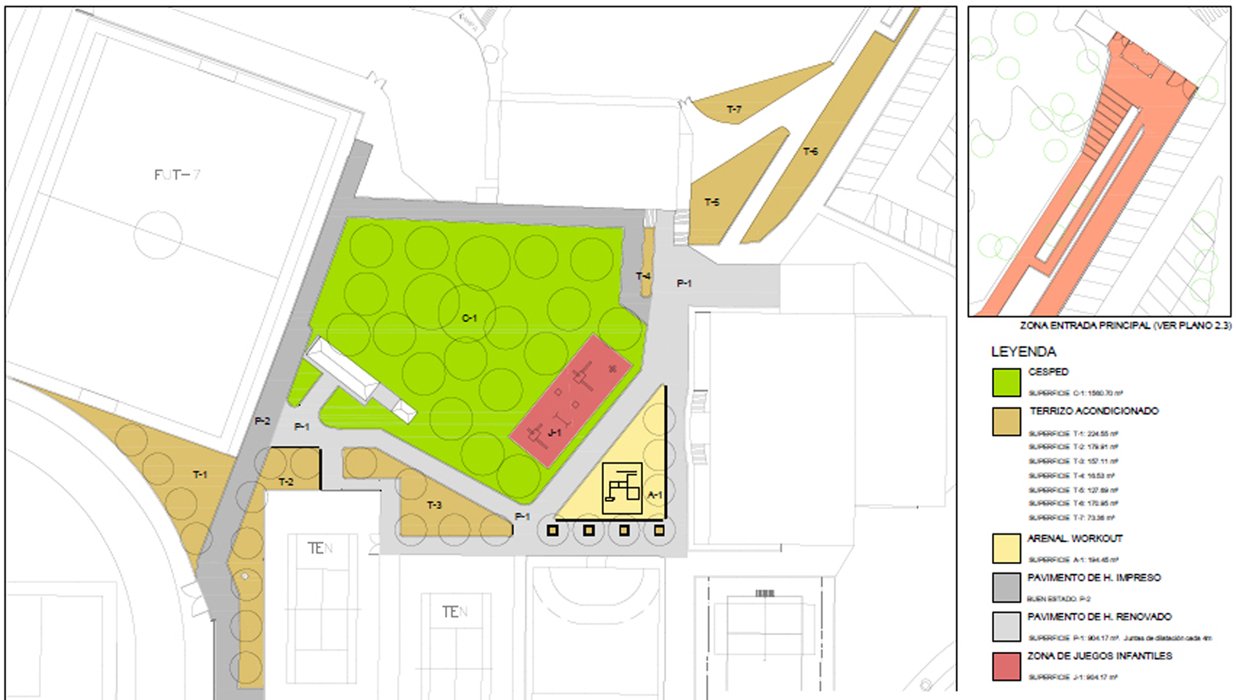
Las obras de acondicionamiento del complejo San Miguel de Azuqueca de Henares han sido adjudicadas por la Junta de Gobierno Local del Ayuntamiento por un importe final de 124.050,93 euros. "Esta actuación se enmarca en el Plan municipal de Mejora de Instalaciones Deportivas y pretende dotar a este espacio de nuevos elementos, al tiempo que se interviene en otros ya existentes", repasa el concejal del área, Sergio de Luz.El proyecto contempla actuaciones en dos zonas: en el merendero y en la entrada principal. En el merendero, se acondicionará zonas verdes con césped, diversas especies arbóreas y riego automático; se sustituirá el pavimento en mal estado y se harán trabajos de ampliación y mejora del almacén que alberga los depósitos de agua para el riego. Además, se habilitará una zona donde se instalarán unos juegos de exterior de workout y que dispondrá de barra corta, anillas y larga, escalera vertical y horizontal, banco de abdominales y barras de flexiones. En cuanto a la entrada principal, se va a sustituir el pavimento deteriorado, incluido el de la escalera que lleva al merendero. Tres empresas van a llevar a cabo estos trabajos: Ingeniería y Construcción S.L., adjudicataria del lote de acondicionamiento de pavimento y ampliación de la caseta de almacén, por un importe de 88.383,96 euros, IVA incluido; Activa Parques y Jardines S.L., que se ocupará del acondicionamiento de zonas verdes con un precio de 26.236,85 euros y, por último, Arquitectura, Construcción y Sistemas de Rehabilitación S.L. acometerá la instalación de los juegos exteriores de workout con una inversión de 9.430,12 euros.Una vez se inicien las obras, el plazo de ejecución previsto es de 13 semanas.